G2TYPE

Living/Dining リビング・ダイニング ※現況の物件写真にCGによる画像処理がされています。家具、小物、カーテン、照明、その他のイメージはCGです。

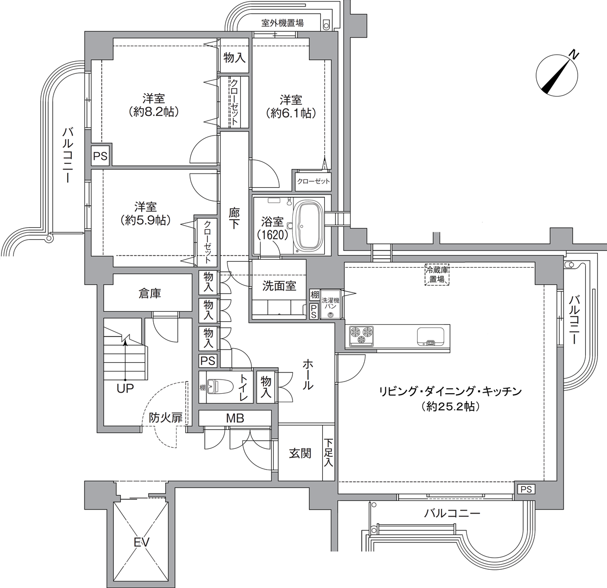
Floor plan 間取り

G2TYPE
3LDK 合計面積
126.24㎡
住戸専有面積
110.38㎡
バルコニー面積 15.86㎡

ゆとりと収納を備えた快適空間

  • 掲載されている専有面積は、壁の芯からの寸法で計算(壁芯計算)してありますので、登記上の内法計算による面積とは異なります。
  • 専有面積の中には、パイプスペース(PS)の一部および物入、住戸内の柱の面積等が含まれています。
  • 間取り及び仕様・仕上げ、建具の形状等は、施工の都合上および改良のため一部変更になる場合があります。
    また、現状と相違する場合には現状を優先いたします。予めご了承ください。
  • 居室等については1.62㎡以上を1帖として算出しています。
  • 坪数は1㎡を0.3025坪で算出し小数点第3位以下は切り捨てています。
  • メーターボックス(MB)については専有面積に含まれません。
  • 各タイプ、階数により、窓の形状および、ガラスの厚さ、種類などが異なりますので予めご了承ください。
  • 掲載の方位等は製作の過程で多少の誤差を生ずる場合があります。予めご了承ください。
  • 柱の太さ、梁の高さは各階によって異なりますので予めご了承ください。
  • 一部住戸のPSには配管清掃用の点検口がつきます。

光と開放感に満ちた住まい

広々としたリビングが暮らしの中心となる住まい。ワイドなバルコニーから差し込む光が部屋を明るく彩ります。洋室や廊下には十分な収納を確保しており、趣味や日常のアイテムもすっきり整理。家族はもちろん、二人暮らしやシングルにも心地よい住環境です。

G2-TYPE

お申し込みはこちら

お申込み

Residential Layout 住棟概略図

ウイング棟:3〜7F

G2-TYPE

お申し込みはこちら

お申込み